
Plentzia 63-64, 2003-2004
COAVN Awards finalist project, 2005
En la urbanización “El Abanico”, entre la costa y la localidad vizcaína de Plentzia, en una ladera de acentuadísima pendiente, orientada a sur y con unas vistas inmejorables a la ría y al valle que forma la misma, se nos plantea el proyecto de dos viviendas unifamiliares independientes para ser vendidas.
La topografía y la dificultad de acceso que plantea la situación de la carretera, junto con el propósito de conseguir la mejor orientación para cada una las viviendas determina el emplazamiento de cada una de ellas.
En un entorno en el que conviven con evidente malestar muy diferentes reinterpretaciones de lenguajes arquitectónicos de distintas épocas y lugares optamos, cobardemente, por no enfrentarnos a la resolución del problema tipológico de lo que ha de ser la vivienda unifamiliar aislada en el País Vasco.
El respeto a un entorno natural privilegiado y la intención de modificarlo lo menos posible, nos lleva a plantear una vivienda semienterrada compuesta por tres planos de forjado limitados a este y oeste por dos muros de contención laterales totalmente abiertos en su cara sur. El forjado superior constituye la cubierta, que es un plano ajardinado en el que se deposita el único elemento manifiestamente visible de la vivienda, el garaje. De una forma algo retórica este elemento reclama la importancia que tiene pues él, el coche, y no otro, hace posible la vida “civilizada” en este revalorizado entorno natural.
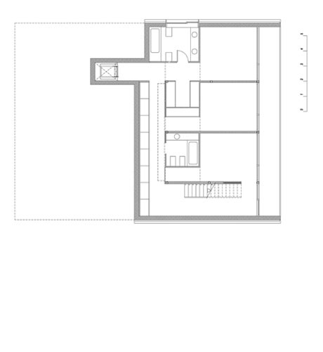
Desde la cubierta ajardinada y a través de un patio central accedemos a la zona de día de la vivienda -salón, comedor, cocina-. En la planta inferior se encuentran los dormitorios y servicios. En ambas plantas hay una terraza exterior, desde la de la planta baja accedemos al jardín. La fachada sur de la vivienda se abre al paisaje, es una relación más visual y contemplativa que física. Esta relación está condicionada por la dificultad de ocupación de un terreno con mucha pendiente y por la nueva forma de relación que pensamos que establece el usuario con el entorno natural o rural que vuelve a colonizar. En las fachadas este y oeste aparecen ventanas cuando funcionalmente es necesario -ventilación e iluminación natural-.












Abanico de Plentzia, Bizkaia, Spain
Date: 03.2003 - 10.2004
Surface: 392 m2 house unity
Developers: Anna Cabó, Svein Aamold
Project: AV62 arquitectos (Victoria Garriga + Toño Foraster)
Collaborators: Guillermo Luna, Maria Pons, Gemma Serch
Photography: Eugeni Pons, AV62 arquitectos